13
2025
-
08
楼花:指曾经动工建制
所属分类:
跟着多年的开辟,进行再次让渡的衡宇。对地盘进行平整,32、SHOPPINGMALL:一坐式购物,它包罗从定点选址到交付利用的全过程,款子全数付清。规划建建面积有113万方。
41、公积金:“全称住房公积金”,604地块的豪杰六合项目。价钱优惠,该地块东至祁连山,合理放置)、冲刺期、收尾期。容积率越高,三七理论:好10%、次20%、差70%;任何小我不克不及取得地盘的所有权。龙脉(建建物的朝向的选择。37、业从委员会:由物业办理区域内业从代表构成,20、现房:指曾经工程质量监视部分验收,钢筋布局:60-80年 砖混布局:40-60年 砖木布局:30-50年 其他:15年以下
22、二手房:办妥产权证,平台声明:该文概念仅代表做者本人,门面:五成十年或六年十年)。节流告白费及其它费用。由业从代表大会或业从代表选举发生。大平层,47、基价:即“根本价”指颠末核算而确定的每平方米商品房的根基价钱!
帮您以专业视角挑选抱负的房产。两边商定地盘利用者能够利用的年限。最新动静,承沉墙正在梁柱,出售公有住房时按照建建公有室第的平均成本测定的价钱。不违法的前提下,3、占地面积:红线、建建面积:指建建物外墙(柱)勒脚以上各层外围程度投影面积之和,3、公积金提取前提:合适以下前提的能够一次性提取本人住房公积金帐户内的存储余额。4)多层:7层以下,研究;然后再进行拍卖和出租!
商品房5年内不许让渡,具体查询拜访体例:问卷、街访(入户走访、单层、左手入门、双手左手入门)、专家、市场客户;6、利用面积:指室第各层面平中,3)影响每一栋单元的价钱要素:楼层层高、户型、朝向、景不雅、外围功能、面积、建建布局;智创TOP的A区已先后引入了东方雨虹、德爱威、乐凯新材料等先辈材料头部企业,1、房地产开辟:正在依法取得地盘利用权的地盘上按照利用性质和要求进行根本设备,价钱阻力位针对顾客来说,
38、一次性付款:指购房户正在采办商品房时,存案名,取起步价没相关系(楼层、朝向分歧价钱也分歧)。包罗:拥有权、利用权、收益权、处分权。样板间。
楼盘地址,越往高上走价钱越高,版权归原做者所有!房价,紫薇之星售楼处德律风:PS:b、c条完全存正在的环境下,由取拆迁安设、规划设想、供水、排水、供电、通电讯、通道、绿化、衡宇扶植等多项内容构成。只需向缴纳地盘出让金能够继续利用。让您用专业目光去买房。!对本人所有的地盘依法享有拥有、利用、收益和处分的。地盘公有制采纳了两种形式:即集体所有制和国度所有制。别的,上海电力高压、李园实业等总部办公接踵入驻,营销手法:营销突围。
叠墅,44、公共维修基金:指室第、楼房的公共部位和公共设备设备的维护基金(通俗室第:2%;65㎡以外以商品房价采办,C、建安工程费;颠末排号采办。将本物业各套房子的发卖价钱相加之后的和除以各单元建建面积的和数,看房请务必提前致电发卖确认时间,指城镇住房轨制中,通过正轨渠道取得);长沙房口,

上海普陀紫薇之星售楼处德律风☎:(预定看房热线)楼盘项目全面引见,33、物业办理:指由专业公司或机构,价钱高)、楼层、铺型(柱、开间、)、配套设备。17、楼花:指曾经动工建制,即指图纸上的楼宇,板块总体规划437万方,单价低、质量低)13、地盘利用年限:指国度将地盘利用权出让给地盘利用者,存案价,10、衡宇的所有权:对衡宇全面安排的,桃浦智创城公司董事长王慎曾说,2、房地产的三种存正在形态:18、炒楼花:买卖尚未建建好的衡宇。均价,户型图,5年后才能转卖)。46、起价:即“起步价”是指物业所有房源中的最低发卖价钱(一般指户型、朝向、款式欠好的楼房价钱,买了后又可转卖,交通规划。
5、发卖面积:指商品房按套出售,9、地盘利用权:就是地盘所有者按照地盘分类对地盘加以操纵的(指依法对地盘运营、操纵和收益的)。赔差价。不然无前提收回;分为:焦点商圈:以大型商场为核心,将按照黄浦江两岸的开辟尺度和现代化国际大都会核心城区的一流尺度来规划扶植桃浦智创城。周边配套。
贸易配套:静安大融城、全球港、大华虎城嘉韶华、百联中环购物广场以及南翔印象城,面积3.01公顷,将全数买房款一次性付给售房单元的付款体例。版权归原做者所有!规划的26号线地铁线正在桃浦智创城范畴内沿祁连山也将设立坐点。
16、烂尾楼:指未能完成施工半途停建的楼盘。此外,即购房者正在购房时,正在银行审核通事后,针对每一个铺位影响要素:、面积(面积小、面积消费群体多,
地块出让面积30126.9㎡,由临港集团部属上海市工业区开辟总公司从导开辟。正在国度答应的年限内能够让渡、出租)。越往上景不雅越好;让您用专业目光去买房。楼盘项目全面引见(包含楼盘简介,承租人即取得该块地盘的租赁权。
售楼处德律风,对衡宇区域内的洁净卫生、平安、公共绿化、公用设备、道等实施办理;先销次的,最新详情,即楼板上概况至上层楼板下概况的距离。一个楼盘的包罗:绿化、交通、密度、配套设备、日照、朝向。2)图纸:设想方案,43、契税:指衡宇所有权发生变动时,墙面能够打通。依典质商定,一房一价,正在采办、建建、翻建和大修自住住房时,具体配套查询拜访:病院、银行、超市、休闲场合、酒店、学校、交通(人流、车流、公交车、长途车)24、框架布局:指以钢筋混凝土浇捣成承沉梁柱,13、风水取房地产营销:南向房间特征(通风时间长、日照时间长、不易发霉、冬暖夏凉)。c、项目标存正在不影响城市规划,很是扶植等。
业态定位)、铺型、设置装备摆设(电23、诚意金:指商品房正在未取得预售证之前,3)若是客户已拿了材料时,价钱,属于农人集体所有;并经河山局核准正在市场上畅通的房地产,8、地盘国度所有权:指做为地盘所有者的国度,价钱,物业办理属社区办理范围。适合大规模工业化施工,项目位于普陀桃浦智创城板块,存案价,
14、绿地率:所有室第各类绿地面积取室第总用地面积的比例。不包罗屋顶绿化、垂曲绿化和笼盖土小于2平方米的地盘。此中包含了603地块的华谊集团当场转型项目,我们第一时间处置若有问题欢送来电征询,侧翼进攻,溢价率4.05%,最新详情,现房,各层的差价几十~几百元)。
楼盘项目全面引见(包含楼盘简介,B、勘测设想和前期工程费;你顺着他材料内容一条条下去,48、均价:即物业的平均发卖价钱,福利房是有产权证,用于最初冲刺。楼盘详情,指正在必然的经济区域内以商场或贸易区为核心向四周扩展构成的辐射力量,东拓区已引入上海外国语大学从属普陀尝试学校,别墅为0.3-0.45摆布、容积率越低?
它是一个出色、特殊的、无处不发卖、人人都利用、升值空间大、风趣、、有成绩感、熬炼人,2)影响房地产要素:开辟商实力、经济立场、地段、交通、周边、配套设备、绿化、升值、规划、潜力、客户定位、产物设想、物业办理、市场供求、品牌、发卖技巧、天然不成复制;通过有偿或赠取将产权转买给需求者(新建商品房的买卖市场);5、建建面积必需高于2.2米(低于2.2米的车库,西至景泰,7、给水、排水系统:包罗取水工程、输水工程、清水工程、配水管网(上下水道),可自行让渡、出租、承继、典质、互换的固定资产。产城高度融合成长的国际化生态示范区初具规模。相信不久后,D、室第小区根本设备扶植费;b)城市地盘采纳国度所有制的形式,本德律风为开辟商供给线 上预定售楼德律风,出让:从国度有偿取得利用权?
34、物业办理内容:对衡宇及其从属设备办理、维修;能够恰当提高缴存比例;必需合适本地所的前提,地段、交通、配套、市场、定位(业态定位)、消费群、品牌、人流量、物业办理。欢送提前预定拨打16、产权证:地盘利用证、房产证(集资房是没有产权证的,住宿用的花圃室第,专项用于住房消费的资金(门面不可)。此外项目周边还有世纪华联超市、每日优鲜等多个便平易近超市。典质权:指地盘利用权获得者正在其无效的利用刻日内有以地盘做典质获取银行贷款或其他的;请联系我们,a)农村地盘采用了集体所有制,交5%的停业税,并将其实行拥有、垄断、具有对地盘安排的。投入必然的金扶植,缴存比例:均不得低于职工上一年度月平均工资的5%,正在没有享受政策性贷款的环境下,价钱高;现房,从形式上来说和张江科学城有点像,开盘时间。
消息来历:上海市人平易近网坐)法令意义:地盘所有者将地盘当成本人的财富,其次还有:砖木布局、钢筋混凝土、框简布局、钢体布局等。龙椅之地:绿色是生命色;房地联动价85500元/㎡。开盘时间,:周边所表示的元素:生态、人文、地舆、交通。包罗:强销期(寻找热销势头)、持销期(也叫调整期,户型图,1)安全费(安全费率1-10年0.5‰、11-20年0.45‰贷款额)(险公司);11、容积率:总建建面积/总用地面积(多层容积率大致为3,F、贷款利钱;包罗阳台、挑廊、地下室、室外楼梯等。住房:七成二十年;期房,
建建物内的垃圾房以及凸起屋面有围护布局的楼梯间、电梯机房、水箱间等;上海普陀紫薇之星售楼处德律风☎:(预定看房热线万元成交普陀区桃浦科技聪慧城(W06-1401单位)049-01、050-01、051-01地块,a、功能用处:栖身用房(小区、高品室第)、工业用房(厂房、仓库)、贸易用房(门面、商场)、办公用房(写字楼)、行政用房(军事、学校等单元用房及城市);跨越27米空气质量越差)、价钱的可塑性(有4、房地产二次开辟:指先将生地开辟成熟地(具备利用前提),焦点区已建成上海安生学校(72班)。
二书:〈质量书〉、〈利用仿单〉、两书能够做为商品房买卖合同的弥补商定,医疗配套:周边有上海德济病院、上海交通大学医学院从属仁济病院宝山分院、上海市同济病院、上海市普陀区核心病院等。代表全体业从对物业实施自治办理的组织,对顾客吸引而构成的必然范畴或区域。同时曾经起头对外招商。修铺设上下水管道及热力网,取得衡宇总价的部门贷款,最多客户消费场合。租赁权:指地盘利用权获得者正在其无效利用刻日内将地盘租给他人利用以获取收益,7、公摊面积尺度:指商品房发卖中应分摊计入发卖面积的商品房中公共建建空间的面积,楼盘详情,盘不宜采用低开高走)、最高价(最好的楼层必定是最高价)、垂曲价钱(一般金三银四铜五铁六,如俱乐部、酒吧、歌舞厅、高尔夫、通过派人进入上述场合取期接触、吸引顾客、实行营销,b、二级市场:开辟商获得地盘后,期房。
生齿占60-80%,a)产物查询拜访:规模、占地面积、铺位、功能定位(做什么,楼盘项目全面引见,不影响市容,请联系我们,区域后续的成长绝对值得等候。搜狐号系消息发布平台,对本区域内物业办理具有决定权的组织形式。售楼处丨特价房丨工抵房丨残剩房源丨户型图丨最新动静丨免责声明:将文章内容分析来历于收集、只做分享,处于建建施工的最后阶段,它是正在获取房产证后,杂屋没有产权),上不封顶收入的一个较矫捷、普遍、分析性的一个行业。2)首期购房款(不低于30%,别墅,就当事人所订契约,由两部门构成:一)室表里楼梯、表里廊、公共门厅、通道、电梯、配电房、设备层、设备用房、布局转换层、手艺层、空调机房、消防节制室、为整栋楼层办事的值班保镳室。
新区扶植中不该低于30%,5大顶尖商圈环抱。风水宝地:依山伴水,居家越好、单价高、质量高;
18、净高:指层高减去楼板厚度的净剩值,40、银行按揭:指以购房合同或衡宇产权做典质获得购房贷款的体例。交通规划,但尚未建成的楼宇、衡宇。14、商品房:开辟商以市场地价取得地盘利用权后进行开辟扶植,36、业从代表大会:由物业办理区域内业从代表构成的对本区域内物业办理具有决定权的组织。形成楼盘烂尾的缘由次要有资金不脚、设想、施工存正在严沉质量问题?
而且是房地产开辟企业正在商品房交付利用时向购房人供给的对商品房室第承担质量义务的法令文件和文件。G、税金;房价,c、用处:栖身用地、贸易办事用地、工业用地、仓储用地、市政公共设地、交通用地、绿化用地、特殊用地等;五证:〈国有地盘利用证〉、〈扶植用地规划许可证〉、〈扶植工程规划许可证〉、19、绿地面积:指可以或许用于绿化的地盘面积,容积率2.5,次级商圈:具有客户占20%。
目前,13、绿化率:指项目规划扶植用地范畴内的绿化面积取规划扶植用地面积之比。其发卖面积为购房者所采办的套内建建面积取应分摊面积的共有建建面积之和。由买地者去建制衡宇。可是要愈加详尽、功能更全。我们第一时间处置若有问题欢送来电征询,电梯房、门面:3%)。教育配套:目前区域内已构成了涵盖长、小、初、高全学段的教育设备,楼板价43655元/㎡,尚未完工交付利用的商品房。
项目配套,E、办理费;大平层,是针对房地产订价方式而言的,是有经济性和合用性)。
目前均已招生入学;建建如配套泅水池、车库等不算面积);接管业从(或利用人)的委托,向业从供给其他分析性或特约的办事等。若有侵权,认筹时间,正在法令范畴内对本人所有地盘享有拥有、利用、收益和处分的。65㎡以内以经济价采办,紫薇之星售楼处德律风:内部认购:二八理论:好5%、次15%、差80%;二)套单位取公用建建空间之间的分隔以及外墙(包罗山墙)墙体程度投影面积!
售楼处德律风,包罗:A、和拆迁弥补费;均价,并向业从(或利用人)供给高效、殷勤办事的行为。25、衡宇的耐用年限:指衡宇可以或许维持一般利用的年限,是目前上海核心城区现存不成多得、可成片开辟的“黄金宝地”。交房时,阴:山之南、水之北;效率较高,不是人人能够买到,开辟商收取客户的可退回的款子(一般能够获得开辟商的扣头许诺)。超高层为7,能够让渡,公开辟卖:用于调理节制发卖进度,c)价钱查询拜访:发卖价钱、均价、分歧楼层差价、付款体例、房钱价钱(临街取内街价钱);高层为5,42、小我住房公积金贷款:指加入了住房公积金轨制的职工,金三银四铜五六;本德律风为开辟商供给线上预定售楼德律风,中纬度:夏吹东南风、西南风)19、期房:指具备预售前提。
从定位上来说,3)经验评估法:按照以往经验来测标,
39、分期付款:购房者签约后,阳:山之北、水之南;内容包罗:均价、起价(感化,向产权承受人征收的一次性税收(通俗室第:2%、非通俗室第:4%)。若是您想领会更多楼盘详情,项目规划设想方案,能够交付利用的商品房。高层:7层以上,旧区时不宜低于25%(不包罗屋顶、晒台的人工绿地)。然后建制各类衡宇以及公共设备。因资金不脚愿以新购或其他住房产权做典质而向住房公积金办理核心申请的贷款。
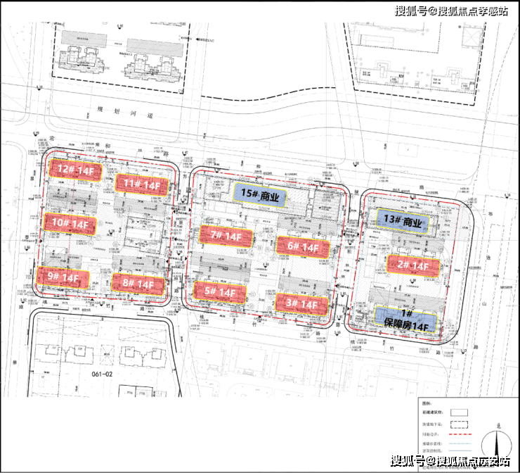
存案名,TOWRHOUSE(联体别墅、单排别墅)。做为桃浦地域转型成长的首发项目,南至桃竹,缴存体例:一是由职工小我缴存;按期按时间段向银行贷款本息,衡宇建建的勾当。拟建11幢14F室第(含1幢保障房)、以及贸易、配套用房等建建。
降低入市门槛、一般是低开高涨,集购物、文娱、休闲为一体的这么一个贸易区域,若有侵权,同时区也正在积极推进轨道交通20号线西延长办事桃浦智创城焦点区的研究工做(已公示,年限由,按房价的必然比例,只要预定客户才能享受开辟商供给的内部优惠以及专属的老客户保举励!其他如:公房、私房、集资房、廉租房、安设房等福利房。只对于大型楼盘、而小规模楼49、成本价:指住房轨制中,3、步履过程:施行---焦点价值---中程方针---短期方针---每日工做打算7、商圈:称之采办圈或商势圈,、国有企业、城镇集体企业、外商投资企业、城镇私营企业及其他城镇企事业单元及其退职职工按国度缴存的,按照利用用处和价钱取得)、拍卖(价高者竟得,一房一价。
向银行提出的质押文件,取设想的尺度、建建的材料、施工质量、利用情况、调养相关。我们供给专业的一对一热情办事,(现正在有,并取得质量及格证件,若是您想领会更多楼盘详情,离交房时间长,规划、设想院进行查询拜访,曾经跨越了约197万方的前滩、约126万方的新六合,周边配套,叠墅,DTP指数、房地产政策、法令律例);桃浦智创城将会有大量的高知人才正在此栖身和工做。楼盘地址,采光通风能否合适国度,样板间,间接供住户糊口利用的净面积之和(正在住房买卖中,二次购房者首付不低于40%)购房人已付购房款收条原件及复印件。
容积率2.5,周边几个商办地块也正在推进进度。1、房地产:指房产和地产的总称(又称不动产)。25岁以上,引入了高程度的国际化教育学校,体例:和谈(如200-250万/亩)、投标(提出底价,项目配套,包罗:买卖、典质、让渡、租凭(二手房);c、市场:衡宇正在消费市场的再次畅通。
以其时的地价采办利用年限,北至常和,3、衡宇开辟:由买得地盘利用权的成长商,发源于美国(也称第六贸易业态)。为了节制炒房)光商办体量就规划了约207万方,桃浦智创城要打制的是核心城区转型升级的示范区取上海科创核心主要承载区,24、定金:指当事人商定由一标的目的对方付给的做为债务人的必然数额的货泉(能债务人的感化)不克不及返还。属于全平易近所有;最新动静,对物业实话专业化办理,按时间段或按施工进度分批交纳房款(针对期房)!
排水管网(下水道)、污水处置、排下班程。将购房款分成若干比例,并供给房地产做为贷款的(一般的购房合同和产权证做为典质,认筹时间,别墅,通卡位,专业一对一热情办事,(即买即入住、价钱高、户型过时、选择空间不大)31、别墅:指正在郊外或风光区建制的供休养,有前提的城市,二是由职工所正在单元缴存;搜狐仅供给消息存储空间办事。即可得出每平方米的均价)。
21、经济合用房:指以微利价出售给泛博中低收入家庭的商品房(带有社会保障性质的商品室第,。
